Semua lampu jalan surya berasal dari sebuah ide. Bagi Anda untuk berbagi ide, Anda harus meletakkannya dalam bentuk gambar. Gambar lampu jalan surya kemudian dapat digunakan dalam desain peralatan dan bertindak sebagai rencana untuk produk akhir.
Dalam kebanyakan kasus, gambar pertama produk belum tentu gambar produk akhir: lebih banyak modifikasi akan diperlukan berdasarkan faktor-faktor seperti ketersediaan bahan sumber daya dan peralatan.
Desainer dan insinyur dari seluruh dunia menggunakan gambar dan gambar untuk berkomunikasi satu sama lain. Oleh karena itu, Anda memerlukan pedoman teknis untuk menggambar lampu jalan surya Anda bagi Anda untuk menciptakan kesan pertama yang baik dan berkomunikasi dengan jelas dalam bahasa yang kebanyakan orang di industri mengerti.
Anda perlu menyertakan gambar pada dokumen seperti proposal desain, spesifikasi teknis, dan perakitan produk dalam manual. Untuk pemahaman yang lebih baik tentang persyaratan teknis untuk lampu jalan surya, Anda harus memasukkan gambar dalam dokumen seperti brosur, katalog, manual, dan tender.
Jenis Gambar
Gambar tangan bebas atau gestural
Sketsa berasal dari data mentah dalam pikiran Anda. Ini adalah langkah pertama dalam menggambar lampu mulai matahari dan menciptakan sedikit desain produk lengkap. Jenis gambar ini tidak mewakili produk akhir, sehingga Anda dapat memodifikasinya jika Anda mau.
Anda akan membutuhkan gambar ini untuk mendapatkan ide Anda ke kertas. Instrumen menggambar tidak diperlukan; biasanya dilakukan dengan menggunakan tangan, kertas, dan pensil Anda.
Ilustrasi Menggambar
Jenis gambar ini dibuat untuk mewakili tata letak lampu jalan surya. Ini dapat digunakan untuk menunjukkan aliran listrik dari modul surya, melalui baterai dan ke perlengkapan pencahayaan untuk menghasilkan cahaya. Menurut standar gambar listrik, gambar ilustratif dapat dengan mudah digunakan untuk menunjukkan sirkuit seluruh sistem.
Gambar Geometris
Anda akan membutuhkan gambar geometris untuk tujuan dimensi. Ini akan membutuhkan beberapa pandangan deskriptif dan skala terukur dari berbagai komponen. Ruang, jarak dan volume dapat diwakili menggunakan gambar Perspektif: gambar 2D atau 3D.
Gambar teknis
Sebagian besar produsen menggunakan gambar teknik untuk menentukan persyaratan untuk merekayasa lampu jalan surya. Gambar teknis bervariasi tergantung pada kebutuhan proyeksi Anda. Gambar isometrik atau ortografi dapat mewakili objek, tergantung pada pandangan yang Anda butuhkan dua, tiga, atau empat tampilan.
Gambar isometrik dapat menunjukkan penampilan keseluruhan komponen yang dirakit, tetapi belum tentu detail dan dimensinya.
Dimensi
Anda perlu menambahkan dimensi ke gambar teknis Anda. Ini harus dilakukan dengan cara yang paling berguna dan harus mengandung dimensi sebanyak mungkin untuk membantu dalam desain dan produksi komponen. Anda perlu mengidentifikasi dimensi yang berlebihan dan menghindari menggunakannya karena mereka dapat mengacaukan gambar.
Secara dimensi, Anda harus menggunakan nilai yang akurat dan memposisikannya dengan tepat tanpa menduplikasinya. Juga, Anda harus menggunakan kualitas garis yang sesuai untuk keterbacaan.
Dalam hal menggambar atau menyusun, ada dua jenis standar: ANSI dan dimensi standar internasional (ISO). Globalisasi menuntut Anda menggunakan pengukuran yang diakui secara internasional seperti Sistem Satuan Internasional (SI), sistem metrik baru dan sistem kekaisaran atau Inggris.
Bagian
Fitur lain untuk digunakan dalam gambar teknis adalah sectioning. Teknik ini memungkinkan pengrajin atau pengguna untuk melihat apa yang ada di dalam komponen atau unit. Anda dapat menggunakan sectioning dalam gambar lampu jalan surya untuk menunjukkan detail rumit dari berbagai komponen.
Anda dapat menggunakan sectioning untuk menampilkan komponen tersembunyi di berbagai komponen lampu jalan surya. Ini hanya dapat bekerja dalam komponen yang memiliki proyeksi penampang. Jenis gambar ini akan membantu menjelaskan bagaimana bagian-bagian rumit dari komponen apa pun.
Alat untuk Menggambar
Freehand
Anda dapat mencapai pandangan yang jelas tentang komponen Anda menggunakan tangan bebas jika Anda memiliki artis di tim Anda. Menggambar dengan tangan membutuhkan lebih sedikit waktu, dan digunakan dalam pengambilan keputusan dan mentransfer ide di atas kertas. Sketsa dapat digambar dengan tangan dan tidak terlalu teknis karena mereka mewakili sebuah ide.
Instrumen Penyusunan Manual
Perangkat lunak yang digunakan untuk menggambar bisa sangat mahal untuk dimiliki, jadi alat paling murah yang digunakan sebagian besar desainer dan insinyur adalah penggunaan instrumen penyusunan manual. Instrumen penyusunan manual membantu perancang mengukur, menggambar garis lurus, dan membuat sudut. Mereka termasuk penguasa, busur derajat, menyusun Kompas dan kurva, dan meja penyusunan datar.
Perangkat lunak
Ketika datang untuk menggambar representasi yang jelas dari produk akhir, Anda dapat menggunakan desainer profesional untuk melakukannya dengan tangan, tetapi banyak yang memilih untuk menggunakan perangkat lunak. Ada banyak penyusunan atau desain berbantuan komputer, atau perangkat lunak CAD yang tersedia untuk membantu Anda menggambar.
Perangkat lunak CAD dapat membantu Anda menangkap semua sudut, presisi, dan detail penting yang mungkin sulit atau memakan waktu menggunakan alat lain. Ini juga dapat memberi Anda pandangan yang meledak tentang sistem lampu jalan, diagram penting dalam perakitan dan pembongkaran peralatan apa pun.
Keuntungan menggunakan CAD adalah Anda dapat menambahkan tekstur, warna, dan fitur lainnya seperti sambungan pengelasan ke gambar Anda. Menggambar dengan perangkat lunak memungkinkan Anda untuk menambahkan karakteristik produk yang dapat diamati ke gambar.
Standar menggambar
Standar dan konvensi gambar dasar sama di mana-mana. Untuk komunikasi yang lebih baik, Anda perlu menggunakan standar desain arsitektur, teknik atau industri yang umum. Target pasar Anda dan kepatuhan terhadap kualitas internasional akan menentukan standar. Untuk mempromosikan perdagangan, Anda harus menggunakan standar yang diakui secara internasional.
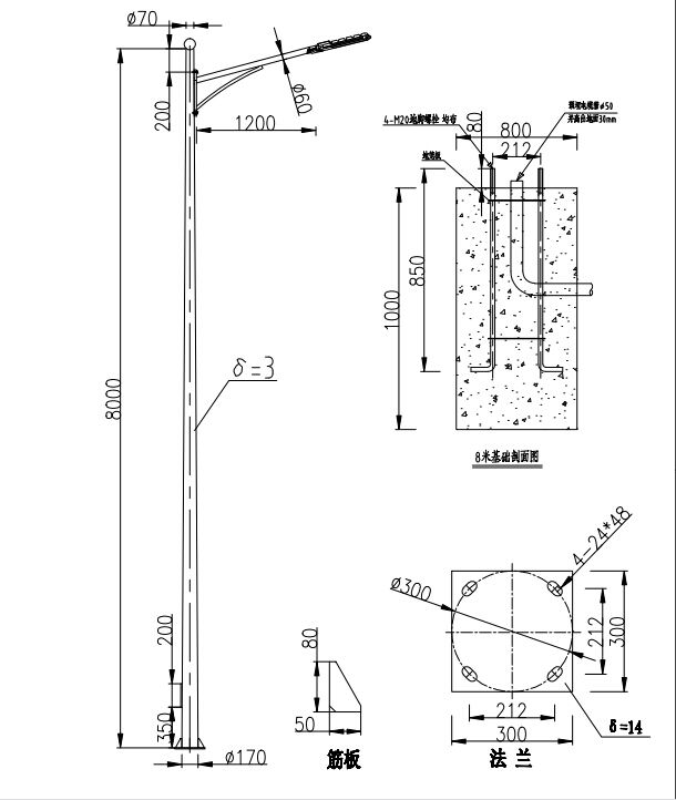
Detail menggambar
Gambar lampu jalan surya harus menangkap informasi dimensi dan desain dari:
Sistem
Komponen
Kolom
Lengan &kurung,
Pijakan
Kabel, dan Kabel
Pedoman teknis untuk gambar lampu jalan surya akan membantu Anda dalam produksi, pemasangan, kabel, dan penggantian komponen yang rusak. Menggunakan menggambar sebagai teknik untuk menggambarkan suatu produk lebih efektif daripada narasi teknis dan menghemat waktu dan kebingungan yang disebabkan oleh penggunaan jargon atau kata-kata teknis.





